toggle navigation
News
Works
About
Media
Contact
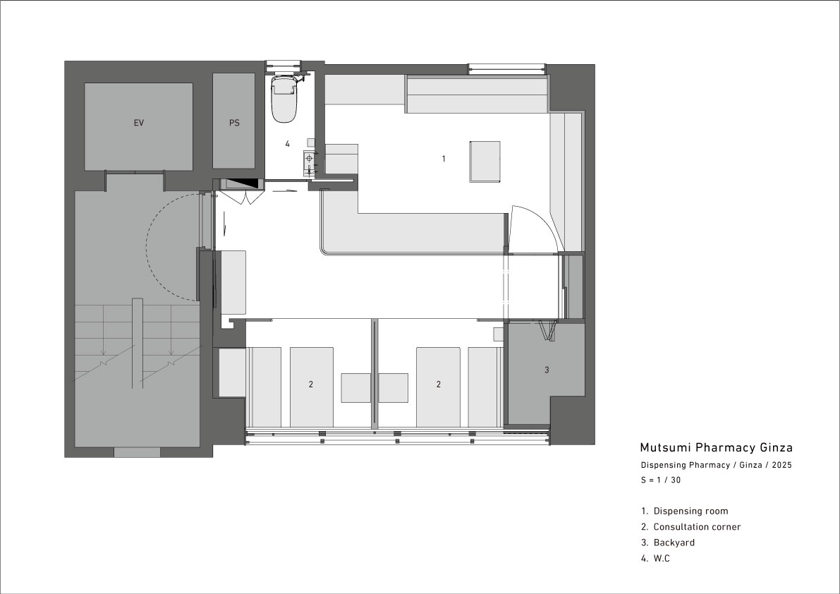
Mutsumi Pharmacy Ginza
Dispensing Pharmacy / Ginza / 2025
DESIGN : DO.DO.
Sign Design : Hiromura Design Office
Photo : Sakura Sueyoshi
News
Works
About
Media
Contact
instagram