toggle navigation
News
Works
About
Media
Contact
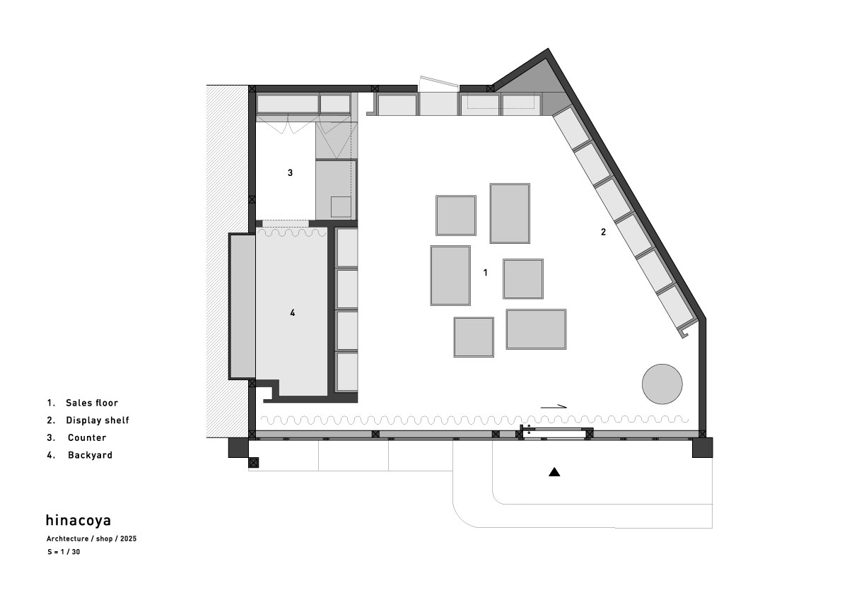
hinacoya
Shop / Hasami Nagasaki / 2025
Client : 西海陶器株式会社
Archtecture ・Interior design : DO.DO.
Logo & Sign Design : DO.DO.
News
Works
About
Media
Contact
instagram