toggle navigation
News
Works
About
Media
Contact
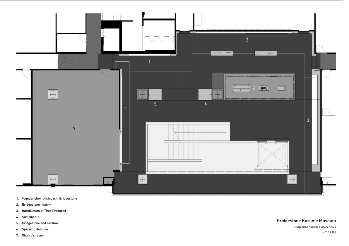
BRIDGESTONE KURUME MUSEUM
Museum / Bridgestone Kurume Factory / 2025
News
Works
About
Media
Contact
instagram